Property Detail

TBD FM20

Bastrop TX 78602

$5,130,000

Status: Active

Property Details

Description

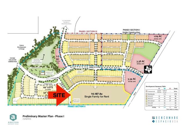
Approx. 14.187 acres located within the Adelton master-planned community in Bastrop, Texas, where there are approvals for over 50 acres of parkland, a robust trail system and 125,000 sf of commercial space within. This parcel has some site plan work for 171 units. With frontage along three roads, this approx. 14.187 acre tract is an ideal Single-Family For Rent Development Site only minutes to downtown Bastrop and approximately 30 minutes to downtown Austin.

Map Location

Listing provided courtesy of of McAllister & Associates. Last updated 2023-09-15 10:13:57.000000. Listing information © 2025 ACTRIS.

Roya1234 Real estate 9:00 AM - 5:00 PM 9:00 AM - 5:00 PM 9:00 AM - 5:00 PM 9:00 AM - 5:00 PM 9:00 AM - 6:00 PM 9:00 AM - 5:00 PM 9:00 AM - 5:00 PM https://s3.amazonaws.com/static.organiclead.com/Site-3f681f1f-5fa7-4409-a780-8a3265e02616/home/HEADSHOT.png realtor # # # https://s3.amazonaws.com/static.organiclead.com/Site-3f681f1f-5fa7-4409-a780-8a3265e02616/home/HEADSHOT.png