Property Detail

6710 Singleton Bend Road

Marble Falls TX 78654

$1,377,700

Status: Active

Property Details

Description

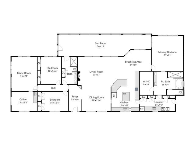
Exquisite Custom Hill Country Retreat with Breathtaking Balcones Canyonlands Views, Nestled on 21 Unrestricted Acres, Complete with a 40x60 All-Metal Workshop. Perched atop this magnificent property are sweeping vistas that stretch for miles, offering awe-inspiring sunsets as your daily backdrop. This spacious single-story gem boasts 3 bedrooms, 2 baths, an office, and a versatile game room. Step onto the expansive screened porch, perfect for gatherings and leisurely moments, while overlooking the glistening swimming pool, adding a touch of luxury to your outdoor living experience. Inside, the home features dramatic high ceilings, meticulously crafted custom cabinetry, and a kitchen adorned with double islands, double ovens, a gas cooktop, and a warming drawer. The owner's suite is a sanctuary unto itself, showcasing a generously sized bedroom with abundant windows, a spacious walk-in shower, a relaxing garden tub, and an elegant double vanity. Each secondary bedroom offers ample closet space to satisfy all your storage needs. This home's open-concept design and fluid floorplan create an entertainer's dream, while the oversized 2-car garage provides ample space for your vehicles and hobbies. The serene surroundings offer tranquility and are teeming with wildlife, providing a peaceful escape from the hustle and bustle of daily life. Enjoy the utmost privacy of unrestricted acreage, while still being conveniently located near the LCRA's Gloster Bend Park and boat ramp. This property operates on a well and septic system, ensuring self-sufficiency and minimal environmental impact. Upgrades include: Roof Shingles Replaced 8/23, Water Filtration System, Central Vacuum System, & Recent Pool Pump Replacement. In summary, this property represents a rare opportunity to own a beautifully crafted custom home on a sprawling piece of the Hill Country, where privacy, natural beauty, and luxurious living converge to create your perfect sanctuary. Don't miss this opportunity.

Map Location

Listing provided courtesy of of Keller Williams Realty-RR WC. Last updated 2024-09-23 10:02:14.000000. Listing information © 2025 ACTRIS.

Roya1234 Real estate 9:00 AM - 5:00 PM 9:00 AM - 5:00 PM 9:00 AM - 5:00 PM 9:00 AM - 5:00 PM 9:00 AM - 6:00 PM 9:00 AM - 5:00 PM 9:00 AM - 5:00 PM https://s3.amazonaws.com/static.organiclead.com/Site-3f681f1f-5fa7-4409-a780-8a3265e02616/home/HEADSHOT.png realtor # # # https://s3.amazonaws.com/static.organiclead.com/Site-3f681f1f-5fa7-4409-a780-8a3265e02616/home/HEADSHOT.png