Property Detail

11506 June Drive

Austin TX 78753

$290,000

Status: Active

Property Details

Description

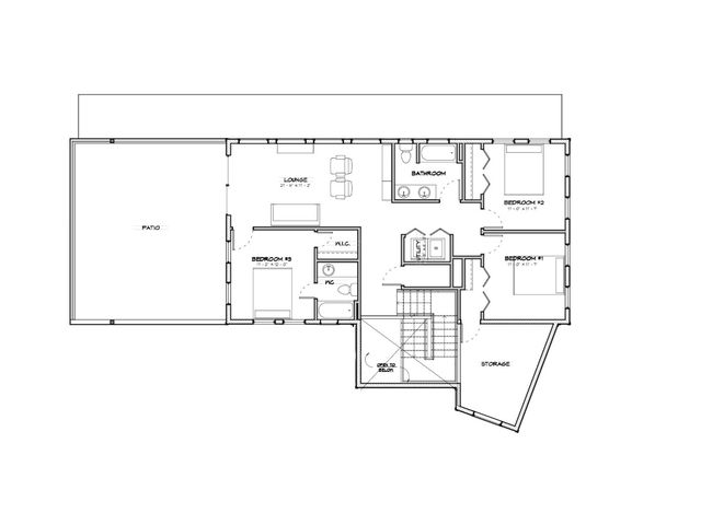
Very rare opportunity to own a spacious lot that backs up to Walnut Creek in the Four Seasons Fall Sec neighborhood in north east Austin. This deal includes Architect Plans, Geotechnical Evaluation, and Structural Plans. All plans and evaluations are stamped and sealed with all topnotch Architects and Engineers. You are way ahead of the game with this one. Plane Specs: 4 Bedroom, 3 full baths, 1 half bath, 2,622 SQFT, two primary bedrooms, 2 laundry areas, Second floor covered patio, full pass through garage, first floor deck with creek view, incognito storage room with access through bedroom closet. The current owner has worked directly with Austin based FAZIO Architects to design the perfect home for this lot. The home has been designed to comply with the City of Austin's setbacks /code compliance and the neighborhood Deed restrictions. The current owner had Austin based Holt Engineering perform a 3 bore Geotechnical Evaluation. The GEO Evaluation was performed to ensure the Structural Engineer could design the best foundation plan for this lot. The current owner worked with Round Rock based Structural Engineering Firm Tucker Engineering to produce a full set of build plans based on the Architect plans. Austin Energy and Austin water have already reviewed the site plan and have approved electrical meter access and water tap & waste water access. Approved Review applications are in listing documents. Being that the property line goes past the building area to the middle of the creek it is in a partial flood plain. The building area is not in a flood plain, see attached flood plain map. In short, the upfront leg-work has been done to build this amazing home. Look at the floor plan to see how amazing this home will be.

Map Location

Listing provided courtesy of of VIP Realty. Last updated 2024-09-23 10:15:07.000000. Listing information © 2025 ACTRIS.

Roya1234 Real estate 9:00 AM - 5:00 PM 9:00 AM - 5:00 PM 9:00 AM - 5:00 PM 9:00 AM - 5:00 PM 9:00 AM - 6:00 PM 9:00 AM - 5:00 PM 9:00 AM - 5:00 PM https://s3.amazonaws.com/static.organiclead.com/Site-3f681f1f-5fa7-4409-a780-8a3265e02616/home/HEADSHOT.png realtor # # # https://s3.amazonaws.com/static.organiclead.com/Site-3f681f1f-5fa7-4409-a780-8a3265e02616/home/HEADSHOT.png