Property Detail

45 La Buena Vista Drive

Wimberley TX 78676

$979,000

Status: Active

Property Details

Description

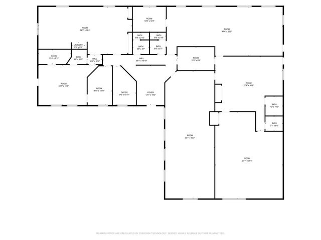
Wimberley Commercial Opportunity! 6, 000 SF building, 1.5 acres, zoned NS (neighborhood services). Ideal for: school, senior living center, clinic, church, home-based business, or other businesses -- inquire with Listing Agent! This 1.5-acre property, zoned NS and located within two-miles from the Wimberley Square, presents a unique opportunity for those seeking ample space and potential for their next business venture. This property currently functions as the Wimberley Montessori School, offering five bathrooms, seven rooms, and four storage areas. With abundant space and infrastructure, this property provides a prime location for creating a business or personal home tailored to meet specific needs. The idyllic hill country setting adds to the charm of this property, creating a truly unique opportunity. Take advantage of this chance to acquire a piece of Texas Hill Country - act now and make it yours today! Contact Andrea Atkins for more information or to set up a showing!

Map Location

Listing provided courtesy of of Keller Williams Realty. Last updated 2024-09-23 10:12:55.000000. Listing information © 2025 ACTRIS.

Roya1234 Real estate 9:00 AM - 5:00 PM 9:00 AM - 5:00 PM 9:00 AM - 5:00 PM 9:00 AM - 5:00 PM 9:00 AM - 6:00 PM 9:00 AM - 5:00 PM 9:00 AM - 5:00 PM https://s3.amazonaws.com/static.organiclead.com/Site-3f681f1f-5fa7-4409-a780-8a3265e02616/home/HEADSHOT.png realtor # # # https://s3.amazonaws.com/static.organiclead.com/Site-3f681f1f-5fa7-4409-a780-8a3265e02616/home/HEADSHOT.png