Property Detail

5503 Hitching Post

Lago Vista TX 78645

$600,000

Status: Active

Property Details

Description

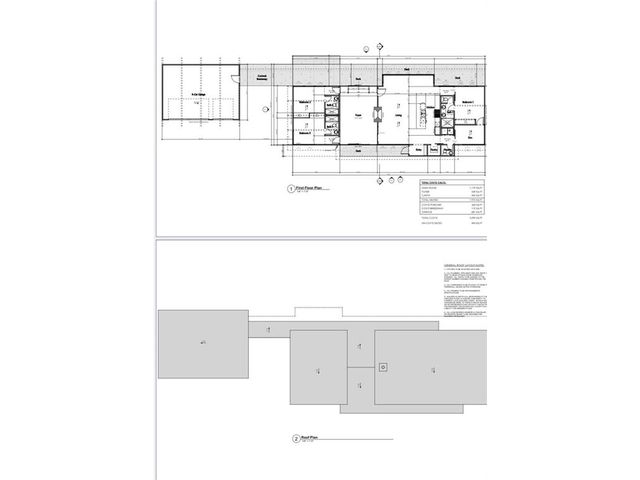
MIDCENTURY MODERN NEW CONSTRUCTION - DOGTROT - www.midcenturycustomhomes.com - For standard specs, interior/exterior finish outs, build schedule, floor plans, preferred lenders, go to https://bit.ly/3044U5h. - All plans are customizable. - These photos are of another floor plan that we built but is a good representation of our finish out. - We recommend printing out the floor plan that you gravitate the most toward and literally marking it up in red with any changes. 95% of the time our answer is "YES". Our homes are known for walls of windows, exposed beams throughout the home with authentic post & beam construction, tongue & groove ceilings in main living areas, high ceilings, open floor plans with less than 5% of wasted square footage, mother in law plans with/without additional casitas, in house pool/spa & outdoor living to be included in the one time close construction loan. Our standard pricing includes all of the upgrades you would normally add. Some of our standards: hardwood floors throughout, custom Kentmore soft close 42 inch cabinets & drawers, quartz countertops, 8 ft solid doors, 6 inch baseboards, Z Line appliances, irrigation & sod, water softener loop, outdoor living set up, 2-4 car garages with transom windows and beams, Rinnai tankless water heaters, ZIP system in interior walls, spray foam insulation in all exterior walls & roof, Ply Gem windows, wood & breeze block privacy fences for courtyards, etc. Midcentury Custom Homes is a turnkey solution. If you don't want to build on the lots we have, we will find you the lot you are looking for based on your all in budget of lot + construction & will take in to consideration things like topography, direction of the sun, utilities placement, privacy, & building setbacks. Sometimes, we actually advise you to modify the floor plan to take advantage of what is best and truly do BUILD TO THE LOT. We have an in house designer that will take you through all of our packages & options for that WOW experience.

Map Location

Listing provided courtesy of of MidCentury Realty. Last updated 2021-05-19 10:01:11.000000. Listing information © 2025 ACTRIS.

Roya1234 Real estate 9:00 AM - 5:00 PM 9:00 AM - 5:00 PM 9:00 AM - 5:00 PM 9:00 AM - 5:00 PM 9:00 AM - 6:00 PM 9:00 AM - 5:00 PM 9:00 AM - 5:00 PM https://s3.amazonaws.com/static.organiclead.com/Site-3f681f1f-5fa7-4409-a780-8a3265e02616/home/HEADSHOT.png realtor # # # https://s3.amazonaws.com/static.organiclead.com/Site-3f681f1f-5fa7-4409-a780-8a3265e02616/home/HEADSHOT.png